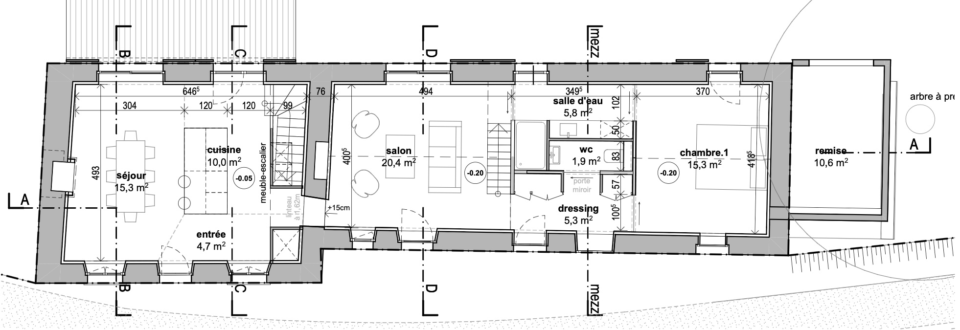
Rénovation bâti ancien à Loguivy-Plougras

Maîtrise d’ouvrage : T+W
Architecte : Bergeron architectes
Mission : Complète
Surface : 105 m2
Avancement : Démarrage chantier


Les travaux concernent la rénovation complète de la maison principale et de la grange.

Les travaux sont réalisés dans le respect des caractéristiques techniques et architecturales du bâti ancien, avec un traitement contemporain des espaces intérieurs.

Des études complémentaires avec un éclairsagite et un paysagiste ont été réalisées.